云逸小栈帐篷
主材:优质碳钢钢管(氟碳漆防锈处理)
外膜:PVDF优质膜材
内膜:帆布
墙体:帆布
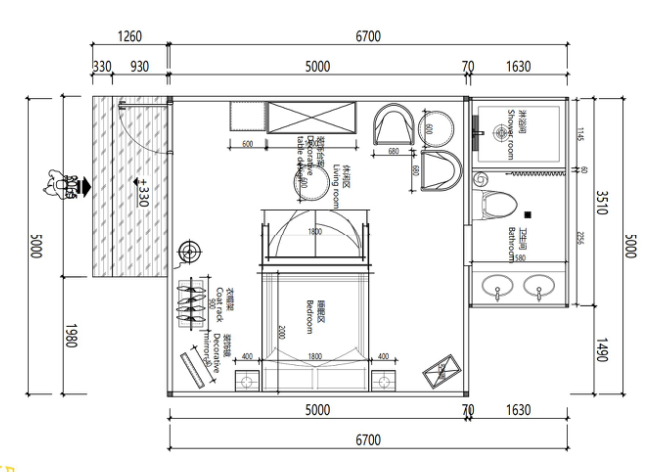
规格:5m*5m+1.5m*3.6m(卫浴)
套内面积:30.4㎡
投影面积:55㎡
抗风等级:10级以下
产品咨询
产品介绍





上一篇:
集装箱韩式帐篷(星韵帐篷)下一篇:
硬体墙韩式帐篷(天籁之居)产品咨询
主材:优质碳钢钢管(氟碳漆防锈处理)
外膜:PVDF优质膜材
内膜:帆布
墙体:帆布
规格:5m*5m+1.5m*3.6m(卫浴)
套内面积:30.4㎡
投影面积:55㎡
抗风等级:10级以下





产品咨询